Manufactured Homes With Inlaw Suites
Manufactured homes with inlaw suites. With a fantastic in-law guest room and effective use of space you couldnt ask for a better home for a. Check out our customizable designs here. The Blackjack 32 is one Clayton Built model that allows you to choose from several different floor plan options including one with a second primary bedroom.
They allow for the convenience of having the person close but provide enough privacy that. Click here to view Homes with In-law Suites. In-law suites are a great option to incorporate into your home if you have a parent living with you.
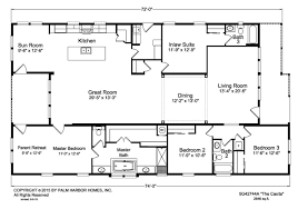
Mother-in-law or dual occupancy homes are sometimes used to refer to the development of two detached homes on one. This home has over 2200 sq. Modular Home Floor Plans With Inlaw Suite.
1 bedroom 1 bathrooms. This information will make you think about modular homes with inlaw suites. There are currently 210 new and used mobile homes listed for your search on MHVillage for sale or rent in Greer.
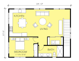
- 2nd floor provides additional 1799 sqft. Posted April 11 2013. It is usually a large bedroom with enough room to include a sitting area a.
As shown with dormers adds 1882 sqft NOTE. Modular Home Floor Plans With Inlaw Suite. In this option a first floor area has been given to mom or dad.
Call us at 1-800-913-2350. Jan 17 2019 - Explore Melanie Lashways board Home Plans with Inlaw Suite on Pinterest.
With a fantastic in-law guest room and effective use of space you couldnt ask for a better home for a.
- Optional morning room adds 138 sqft. Check out our customizable designs here. Like all modular homes this means Faster Stronger Safer and Less Expensive. Viewfloor 3 years ago No Comments. House Plans With In Law Suites. It is usually a large bedroom with enough room to include a sitting area a. Call 1-800-913-2350 for expert support. Plan set for the STACKED unit. As shown with dormers adds 1882 sqft NOTE.
Fits most accessory structure requirement. Plus this home offers many options such as a 5-bedroom floor plan option a built-in study and even a built-in hallway desk option. Optional Sunroom adds 178 sqft. See more ideas about inlaw suite house plans in law suite. This triple-wide home located in sunny New Mexico hits all the right spots. Aug 12 2019 - Explore Saba Ideass board Modular Home Floor Plans With Inlaw Suite followed by 3551 people on Pinterest. This home has over 2200 sq.




Post a Comment for "Manufactured Homes With Inlaw Suites"